EcoCasa II: Año nuevo, obra nueva

Como algunos lo saben, este año empezó con mucha energia y nuevos proyectos!

Uno de ellos es la construcción de una segunda EcoCasa, esta vez para un tercero.

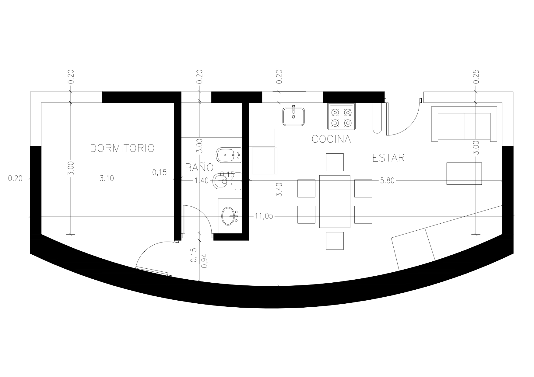
Aqui va el plano de la casa, y próximamente subiremos fotos del avance de obra.

Vale decir que es totalmente auto-construida con ayuda de voluntarios, y que si se quieren sumar a esta experiencia están bienvenidos! Esta vez hasta los cimientos los hicimos nosotros mismos, guiados por nuestro arquitecto.

También es interesante precisar que aprovechamos la pendiente del terreno para hacer una vivienda tipo «Earthship», con la fachada Sur hecha de cubiertas y directamente pegada a la montaña, lo cual da como resultado una casa integrada al entorno natural.

Esta es una nueva técnica para nosotros y nuevos desafíos nos esperan. Estamos muy emocionados por seguir viendo y viviendo su evolución!

EcoCasa II

Publicado por EcoSuyana

Bioconstrucción y Saneamiento de Aguas mediante Fitofiltros

3 comentarios sobre “EcoCasa II: Año nuevo, obra nueva

  1. Hola!!! tenemos la idea de jubilarnos e ir a vivir a un terreno que tenemos en el pueblito,cerca de San Javier, nos encantaría,saber si llegan hasta allá para construir!!! Gracias!!!

    Me gusta

Deja un comentario